Gonzalez Serrano Studio+

Un frontón tras la celosía

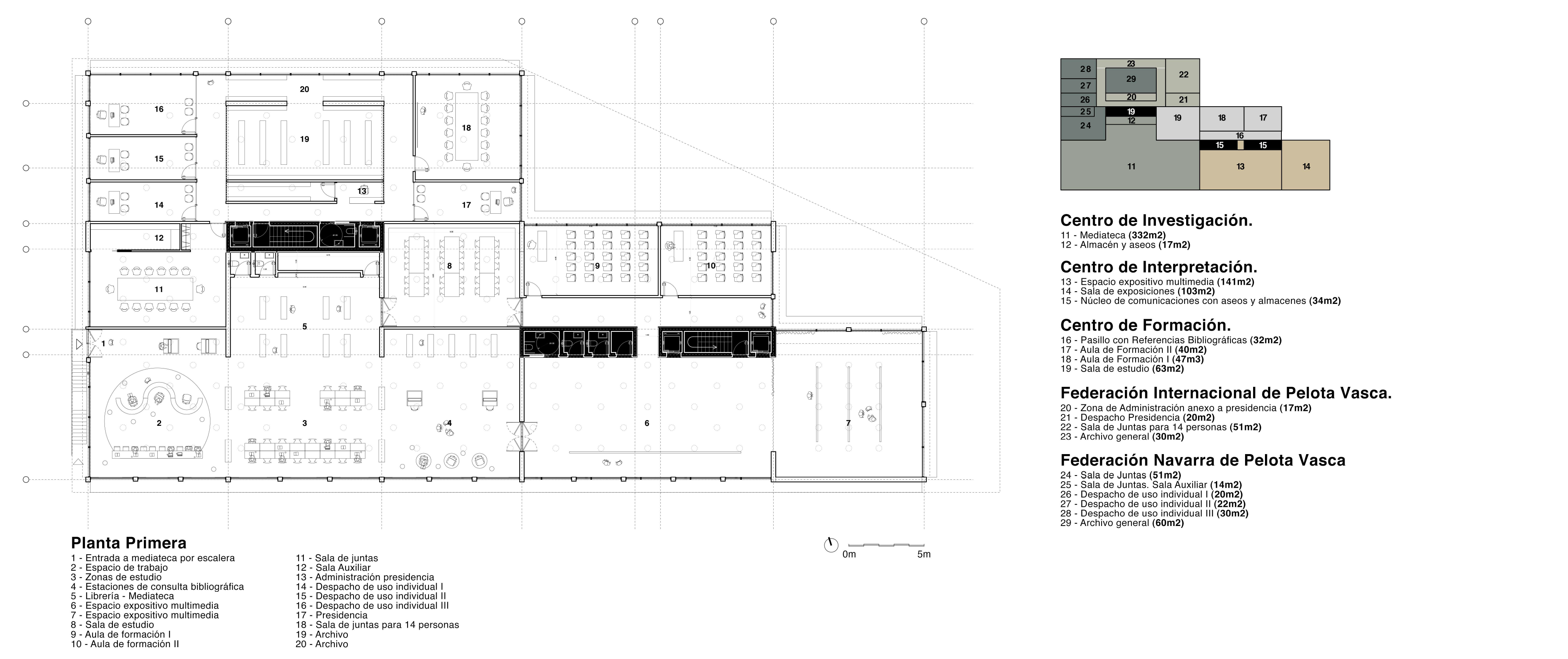
Centro de reinterpretación de la Pelota Vasca, Pamplona (Concurso)

INFO

“Un frontón tras la celosía” nace con la intención de revitalizar una zona emblemática en el centro de Pamplona, otorgándole una nueva vida mediante la creación de un edificio cultural y la intervención urbanística de su entorno inmediato. En su núcleo, este proyecto plantea un diálogo entre el pasado y el presente, con la construcción de un centro de interpretación de la pelota vasca, deporte profundamente enraizado en la identidad cultural de la región, y una serie de actuaciones que buscan recuperar el carácter lúdico y social del espacio público.

Un catalizador cultural, un frontón y una nueva plaza.

Un edificio volumétricamente sencillo que busca integrarse respetuosamente en su entorno, que utiliza materiales que resuenan en la memoria colectiva de Pamplona, como los muros de piedra que evocan las fortificaciones históricas de la ciudad y el mimbre, inspiradose en las cestas de las canastas con las que se juega a la pelota vasca. Esta materialidad no solo ancla el edificio en el contexto tangible de la ciudad, sino que lo vincula a los elementos intangibles de su patrimonio, como las tradiciones y los juegos que forman parte de la vida cotidiana de sus habitantes.

Un edificio en la ciudad que usa lo material y lo inmaterial para formalizarse. Un espacio de descubrimiento, aprendizaje y disfrute.

Diagrams

Transversal section

Elevation

Floor plan

Detalle

Toda la fachada posee la misma solución constructiva, unos materiales con caracter y presencial que acompañan a todo el edificio. La fachada se compone de una serie de capas que tratan de filtrar la luz y protegerse del calor o abrirse para recibirlo. Un aplacado continuo de piedra natural y una celosía de mimbre recorren la fachada

— PROYECTO

Un frontón tras la celosía


— EQUIPO

Álvaro González Serrano

Arquitecto Principal


Ali Kanso

Arquitecto


Pierandrea Amichevole

Arquitecto


— FECHA

Octubre 2024