Gonzalez Serrano Studio+

House of Reiki

Miami, FL, USA

INFO

House of meditation and landscapping.

Work: Intervention in existing house, extension + renovation + landscapping

Status: Under development

Client: Private

Exterior Render

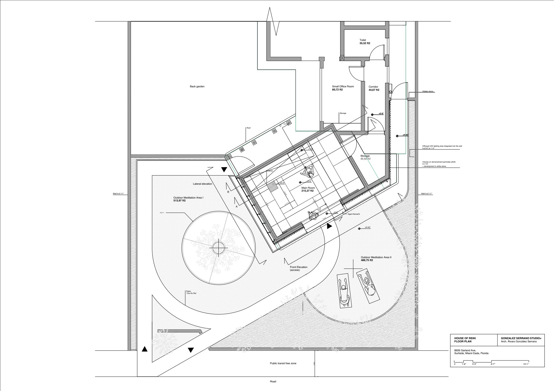
General Floor Plan

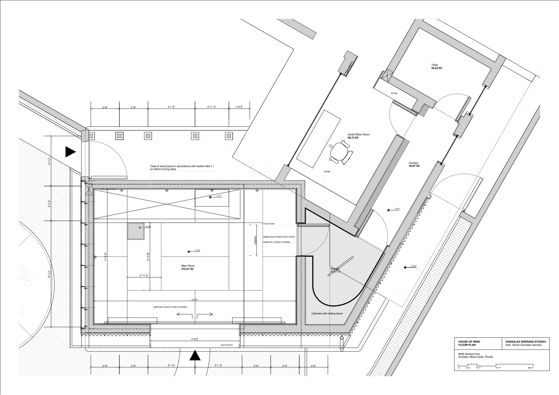
Floor plan intervention

Front Elevation

Lateral Elevation

Longitudinal Section

Transversal Section

Interiors

Click to check the construction project in detail (.pdf)