Green Buffer
30 Residential Units in Miranda de Ebro
PEM 2.500.000 euros
Project in collaboration with GilBartolomé ADW
Estado: Anteproyecto
Project in collaboration with GilBartolomé ADW
Estado: Anteproyecto
Exterior view
Exterior view
Section
Ground Floor & Parking
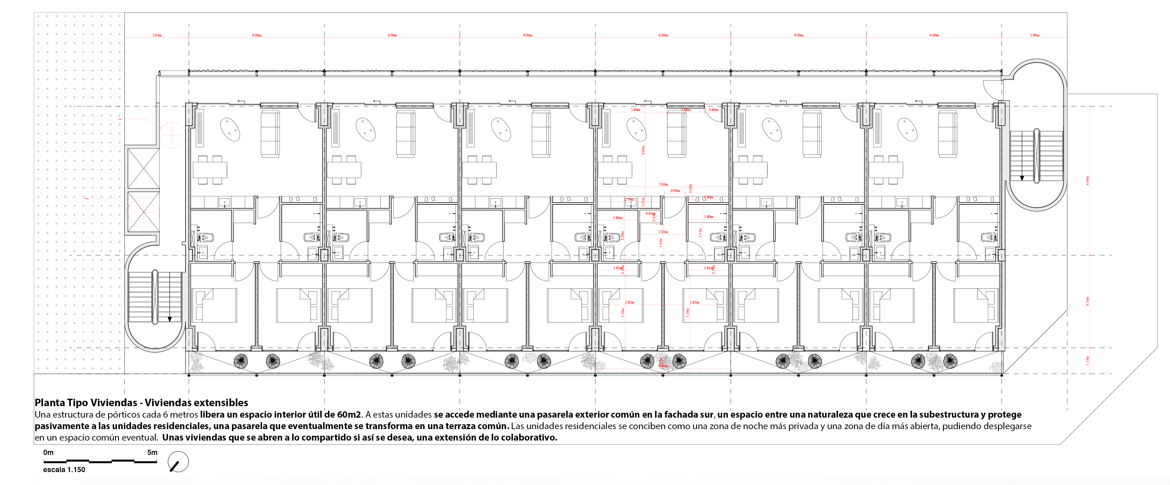
Residential Floors
Facade
Competition Panel I
Competition Panel II